PLAREL SA - architectes et urbanistes associésLogo PLAREL SA - architectes et urbanistes associés

architecture

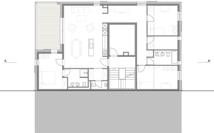
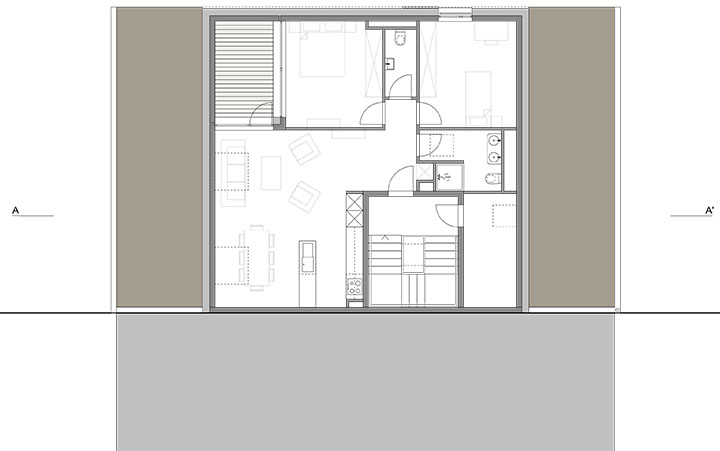
Maison accolée de 3 logements

Lieu Romanel-sur-Lausanne
Projet 2020
Maître de l'ouvrage ST Immobilier SA
Maison accolée de 3 logements Maison accolée de 3 logements
Maison accolée de 3 logements
 
Maison accolée de 3 logements Maison accolée de 3 logements Maison accolée de 3 logements