PLAREL SA - architectes et urbanistes associésLogo PLAREL SA - architectes et urbanistes associés

architecture

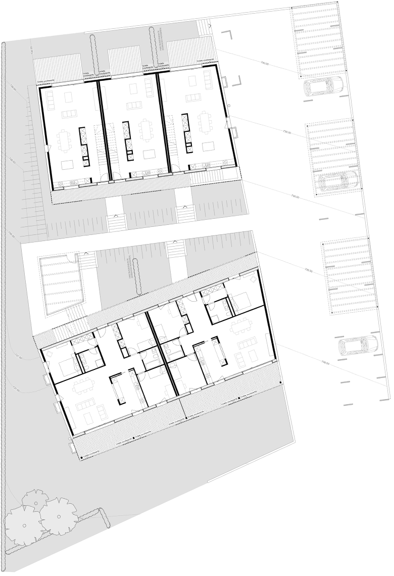
Deux bâtiments villageois d’habitation

Lieu Montricher
Projet 2011
Réalisation 2012 - 2014
Maître de l'ouvrage privé
Deux bâtiments villageois d’habitation Deux bâtiments villageois d’habitation
Deux bâtiments villageois d’habitation
 
Deux bâtiments villageois d’habitation