PLAREL SA - architectes et urbanistes associésLogo PLAREL SA - architectes et urbanistes associés

architecture

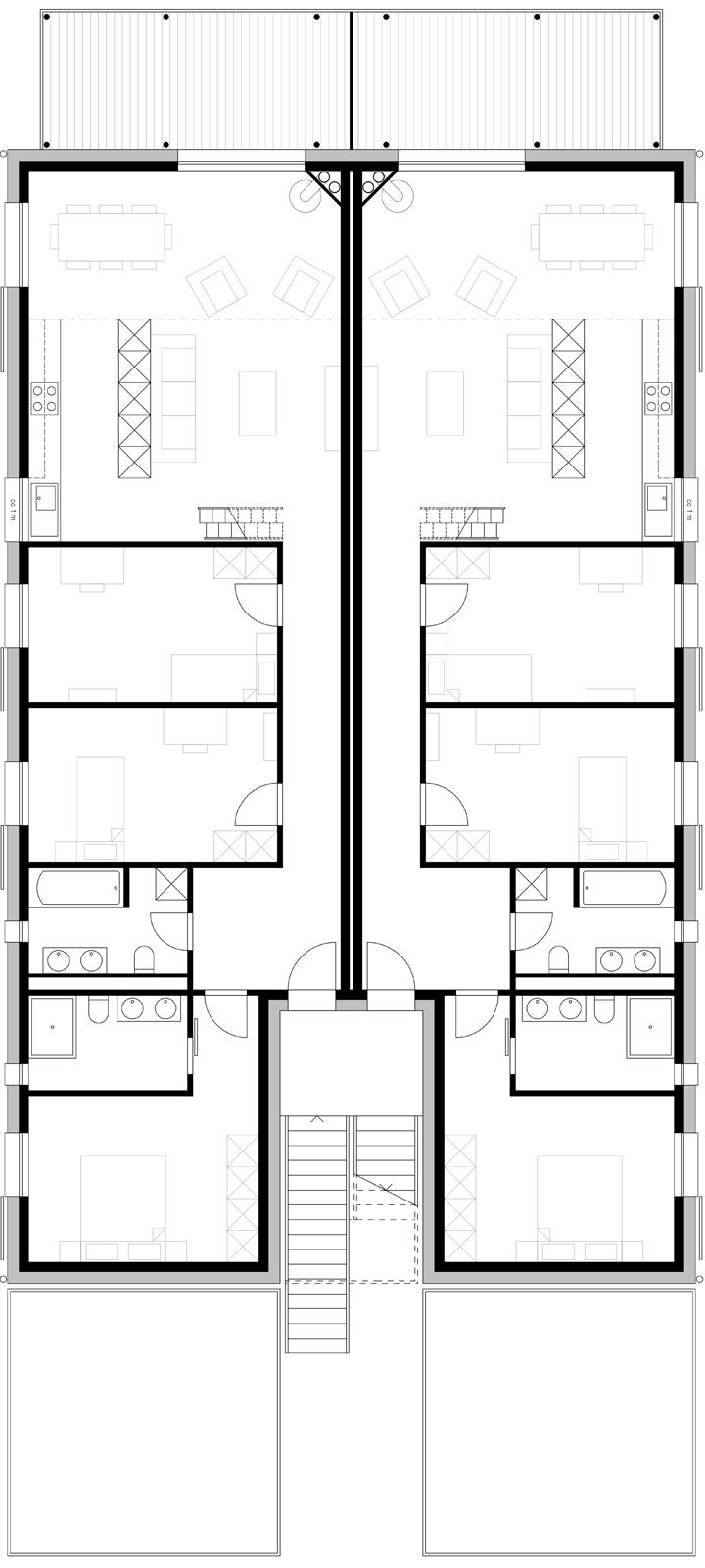
Bâtiment villageois d’habitation

Lieu Assens
Projet 2015
Réalisation 2016 - 2017
Maître de l'ouvrage privé
Bâtiment villageois d’habitation Bâtiment villageois d’habitation Bâtiment villageois d’habitation